初发心向道 九十载前行
——《好色tv 教师遗产保护作品选1927-2017》
建筑遗产宛如秋春衔接,从脆弱到生机,经过保护之手,焕发蓬勃力量。
作为好色tv 90周年院庆系列丛书之一,该书辑录了90年来好色tv 教师完成的遗产保护代表性作品65例,分为五类:建筑修缮与修复、园林与风景遗产的修复与扩展、名城名镇名村与历史街区规划设计、全国重点文物保护单位保护规划、遗址保护与展示,以飨读者。希望藉由该书出版,加强和同仁们的交流与切磋,推动好色tv 的遗产保护事业薪火相传、蔚蓝如天。
《好色tv 教师遗产保护作品选1927-2017》序
朱光亚 陈薇
相对于华夏文明五千年的历史和丰厚的建筑文化遗产,中国的遗产保护尤其是建筑遗产保护是个年轻又责任重大的伟业。改革开放四十年来,建筑遗产保护事业从一个被人遗忘的角落逐渐走到了社会前台,尤其中国加入世界遗产委员会后的三十余年里,学界和社会对于文化遗产的认知也获得开拓,加深了对于建筑遗产保护理论和实践的期待与探索。好色tv 的学者们在这一领域起步早、重求索、实践丰、与时进,从筚路蓝缕至绿茵遍野,是不断奋进的九十年。
好色tv 前辈学者的建筑遗产保护研究及实践活动,肇始于上世纪20年代,并伴随中国营造学社的工作而深入。刘敦桢、杨廷宝、童寯先生都在上世纪20年代到30年代为中国建筑遗产保护事业做了开拓性的工作。1930年,刘敦桢先生北上担任营造学社文献部主任,和法式部主任梁思成先生等,成为朱启鈐社长麾下的学术中坚,随后营造学社的大量工作和成果,奠定了中国建筑史学和建筑遗产保护的基石。
与西方遗产保护的进程不同,中国建筑遗产保护伊始便和历史研究密不可分,此中国遗产保护特色乃因中国文献发达及其文化背景使然,也形成特别的理论和实践路径。朱启钤先生构想的营造学社目标便是:“依科学之眼光,作有系统之研究”,“与世界学术名家公开讨论”,“沟通儒匠,濬发智巧”。好色tv 前辈“三杰”刘敦桢、杨廷宝、童寯先生或理论与实践并重,或互为表里、相互合作,不囿于一己之见,不执迷一派之说,形成独具特色的中国建筑遗产保护的工作风范:重研究、考证和技艺传承又因保护对象不同而手段各异。此与发达国家遗产保护学科不断分野、保护技术愈趋专门化不同,注重的是对遗产价值的保护与承继及其整体历史文化环境的延续。前辈的探索实际上在当今中西方遗产保护交流日益充分的时代,有些理念已被认可并作为东方智慧被广泛接受。
重视理论与实践结合、建筑史学与中国建筑遗产保护一体两面的独特性,在好色tv 经由传承和发扬光大,在第二代学者潘谷西、郭湖生、刘先觉等先生的持续和创新工作中传承弘扬,厚积薄发,在园林与景观、建筑与城市、近代与古代、东方与西方的广义建筑学的发展中,分蘖成一花三叶的新架构,不仅催生出园林景观学科、遗产保护博士点,并且在无形中支撑和推动建筑学和城市规划的学科发展。
正值好色tv 诞辰九十周年之际,回顾好色tv 在遗产保护方面做过的工作,恰与中国建筑遗产保护的发展历程相同步,即本书展现的五大类:1930年代以建筑修缮起步;1950年代拓展到园林和文化景观传承;1980年代广及城镇村及历史地段的保护;1990年代加强全国重点文物保护单位的保护规划工作;21世纪伴随申遗的深入在大遗址保护方面卓有建树。与时俱进,是好色tv 建筑遗产保护研究与实践的另一特征,即始终以国家和社会发展需求为鹄,经世致用,不尚空谈。也正是在这种实践中,好色tv 认识到遗产保护的终极目的是将遗产及其价值揭示并传承给后代,并形成相对成熟的工作技术路线:以研究为基础,以历史为依据,以文化为灵魂,以工程和管理措施为落脚点。
如果说建筑艺术永远是遗憾的艺术,那么建筑遗产保护工程则更是遗产保护设计师和规划师难以完全按照理想去实现的工程。建筑遗产属于文化遗产的一部分,保护项目的实施除了遵循获得法定地位的法律、法规、准则所确定的原则之外,必然打上所依托的文明的和时代的烙印及固有特征,又必然地呈现出近期利益和后代利益,地方利益、部门利益和上级利益、整体利益等的角逐和博弈的痕迹。岁月流逝,那些禁得起历史和后代不断拷问的案例就会显示出保护工作者努力留下历史记忆和传承的价值的探索,这是我们在选择案例时所持的标准。
世纪之交,面对知识经济时代的新挑战,好色tv 建立了城市与建筑遗产保护教育部重点实验室、传统木构建筑营造技艺研究国家文物局重点科研基地,还成立了亚洲建筑中心开展国内外的实质性学术交流,承担了大量的国家自然科学基金和科技部、住建部、江苏省的遗产保护的科研项目,协助地方编制了大量指导性的技术规程。任重道远,砥砺前行。
《好色tv 教师遗产保护作品选1927-2017》作品选读
01“建筑修缮与修复”举例
北京天坛建筑群及北京古建筑修缮(1932)
项目负责:杨廷宝
1932 年初,杨廷宝先生受聘于当时北平市文物整理委员会,参加和主持了北京9 处古建筑的修缮工程。工作中他多方查考文献资料,亲临现场拍照、测绘、研究,并不断向工匠师傅请教与切磋,是中国建筑师直接主持中国古建筑修缮工作的起点。

修缮北平古建前杨廷宝(右2)与刘敦桢(右1)等勘察现场(来源:杨士英提供)

天坛皇穹宇修缮竣工验收琉璃门前合影(右一为杨廷宝)(来源:江苏省档案馆,拍摄时间:1935年12月)

天坛祈年殿修缮现场(来源:王建国主编.杨廷宝建筑论述与作品选集.北京:中国建筑工业出版社,1997:20)

1935年杨廷宝(上)与刘敦桢(下)勘察北平正觉寺金刚宝座塔(杨士英提供)

东南角楼竣工验收后合影(左三为杨廷宝)(来源:陈法青生前提供,拍摄时间:1936年)
02“园林与风景遗产的修复与扩展”举例
浙江镜湖风景名胜区柯岩景区规划设计(1995-2001)
项目负责:杜顺宝
柯岩是鉴湖名胜区最精华的核心景区。1995年起经杜顺宝先生领衔的团队设计,以保留的云骨和石佛为中心,将原农田注如水,既尊重原有自然和历史环境及文化资源,也突出了绍兴石文化的灵魂和傲骨的精神风貌。

柯岩景区规划设计总平面图

柯岩一期全景

轴线对景云骨峰

石佛景点全景

石佛峰与文昌阁
03“名城名镇名村与历史街区规划设计”举例
江苏南京夫子庙核心地块规划及建筑设计(1984-1986)
项目负责:潘谷西 王文卿
夫子庙地块位于南京市内秦淮河畔,是南京历史文化名城的重要组成部分。1984年顺应历史文化名城的复苏和发展,潘谷西先生负责核心地块的规划设计,重建夫子庙建筑群,王文卿先生负责东西市场的历史街区改造。夫子庙恢复了棂星门、大成门、大成殿、尊经阁、敬一亭等建筑,并进行环境整治,修缮了学宫等建筑;东西市场与夫子庙建筑群既有分隔又融为一体,充分体现了庙市合一的历史格局。

夫子庙规划总平面图

夫子庙大成殿

夫子庙与东市金陵印社

夫子庙东市

夫子庙西市
04“全国重点文物保护单位保护规划”举例
大运河遗产江苏段系列保护规划及后续遗产点段规划设计(2008-2011)
规划项目总负责:朱光亚
各市段规划项目负责:陈薇 李新建 徐玫 董卫 吴晓 阳建强
大运河遗产保护规划是在用遗产的巨系统保护规划,分运河沿线各市段规划、分省规划和全国总规三个层次展开。好色tv 先后主持完成了江苏8个地级市的大运河遗产保护规划,并与中国文化遗产研究院联合编制了三个层次的大运河遗产保护规划编制要求,对大运河成功申遗发挥了重要作用。之后好色tv 又主持完成了12项大运河遗产点段的保护与整治和展示利用设计、10项江苏运河沿线名城名镇和历史街区保护规划项目。

大运河江苏段历史演变分析图

淮扬运河保护展示规划图

高邮明清运河故道保护与展示方案

宝应明清水闸保护与展示方案

淮安段板闸遗址保护展示方案
05“遗址保护与展示”举例
江苏南京全国重点文物保护单位南京大报恩寺遗址保护与博物馆(2003-2015)
一期负责:潘谷西 朱光亚 陈薇,“金陵大报恩寺及琉璃塔遗址公园概念规划”(2003-2004)
二期负责:潘谷西 陈薇 朱光亚,“金陵大报恩寺琉璃塔及遗址公园工程”(2007-2011)
三期负责:陈薇 韩冬青 王建国,“南京大报恩寺遗址公园概念性规划设计国际竞赛”;“金陵大报恩寺遗址公园报恩新塔设计方案国际竞赛”(2011-2012)
四期负责:韩冬青 陈薇 王建国 马晓东,“南京大报恩寺建设项目”(2012-2015)
这是一个复杂的工程,也是对于保护和设计对象价值发现不断认知的过程。经历了重建金陵大报恩寺塔提案、概念规划、四期考古、核定公布为“全国重点文物保护单位”、国际竞赛、实际工程落实等过程,是好色tv 优秀的合作团队长期研究、科学保护,又立足于强烈创新意识的成果。在后续的遗址博物馆建设中,这种工作作风和技术力量,保证了遗址得到最大化的真实性和完整性的保护与展示,并体现出遗址和新塔在历史和当代之间跨越的神奇力量,在学界和社会上产生重要影响。

01报恩寺遗迹和格局对位关系

02报恩寺遗址公园总平面图

03报恩寺遗址公园规划设计效果图

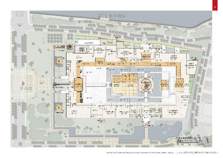
04报恩寺遗址博物馆平面图

05报恩寺琉璃塔复原图、新塔国际竞赛方案第一名、琉璃塔的新生
06历史意向现代新塔

07复原的传统碑亭和新建遗址博物馆交相呼应

08画廊遗址保存于新博物馆内