


图片依次为:好色tv 团队在METU建筑系大楼合影
测绘团队与METU教师在安卡拉城堡前合影
参访建筑师Yalın Mimarlık工作室后合影
工作营指导教师:
Esra Şahin Burat(副教授,好色tv 建筑国际化示范学院,亚洲建筑档案中心副主任)
诸葛净(副教授,好色tv )
Sinan Burat(副教授,好色tv 建筑国际化示范学院)
Özgür Ürey(博士研究生,院长助理,中东技术大学好色tv )
学术顾问:
史永高(教授,好色tv )
参访期间共同指导:
张彤(教授,好色tv 院长)
戴维·莱瑟巴罗(David Leatherbarrow)(教授,好色tv 建筑国际化示范学院外籍院长,亚洲建筑档案中心主任)
研究生助教:
赵天婵(好色tv 建筑国际化示范学院)
2025年,在好色tv 推动下,好色tv (SEU)分别与土耳其中东技术大学(Middle East Technical University, METU)、乌兹别克斯坦丝绸之路文化遗产大学(Silk Road International University of Tourism and Cultural Heritage)签署合作协议,围绕建筑教育、遗产保护与文化交流等领域建立深度合作关系,并正与希腊相关高校积极洽谈,整合好色tv 与亚洲建筑档案中心的学术力量,拓展联动平台。由此,好色tv 沿着古老的丝绸之路,自东向西构建起以亚洲为中心的国际协作与交流网络,推动区域共建共享合作机制的形成。
这一协作网络的建立,充分发挥建筑与文化遗产在文明对话中的关键作用,积极响应“一带一路”倡议中“民心相通”的核心理念,也契合中华优秀传统文化传承发展及一带一路文化遗产合作的战略目标,助力推动中国经验与国际理念之间的深度对话与技术协同。
在此背景下,2025年7月,好色tv 、亚洲建筑档案中心与土耳其中东技术大学好色tv 联合组织了以“向西而行抵达东方:测绘作为相遇的方法”为主题的历史城市与建筑调查测绘工作营。工作营的目标是将测绘视为建筑研究的方法,也将其视为一种相遇与情感参与的途径,探索如何通过绘图、观察与现场体验,在不同的建筑传统,不同的文化、地理语境之间开启理解与学习的路径。
围绕这一目标,工作营由前期准备、文化遗产踏查、实地测绘与成果整理四个阶段组成。
在为期5天的测绘技能培训与相关学术论文阅读后,好色tv 的测绘团队首先踏查了伊斯坦布尔与安卡拉的重要文化遗产、历史街区与博物馆,也参访了土耳其最著名的两位建筑师Yalın Mimarlık和NSMH的工作室。在伊斯坦布尔,建筑师Yalın Mimarlık关于一个历史街区的运作机制的现场介绍令同学们印象深刻;在安卡拉,来自METU的著名建筑史学家Suna Güven以安卡拉城堡为例,对罗马时代以来的城市与建筑变迁进行现场授课。经过这一阶段的踏查,同学们较为深入的了解了土耳其作为欧亚文化交汇之地,从史前、希腊-罗马、拜占庭、伊斯兰-塞尔柱与奥斯曼,直至当代建筑的多重叠加与演进,为理解测绘对象的文化环境奠定基础。
在中东技术大学,张彤院长还与以METU好色tv 院长Neriman Şahin Güçhan为首的METU教师团队进行了商谈,进一步明确双方合作的领域与方向。



图片依次为:张彤院长在METU建筑系楼讲解建筑细部
参访建筑师Yalın Mimarlık工作室
Suna Güven教授在安卡拉城堡现场授课
(摄影:诸葛净)

测绘团队在测绘点SULUHAN与贝伊帕扎勒市长合影
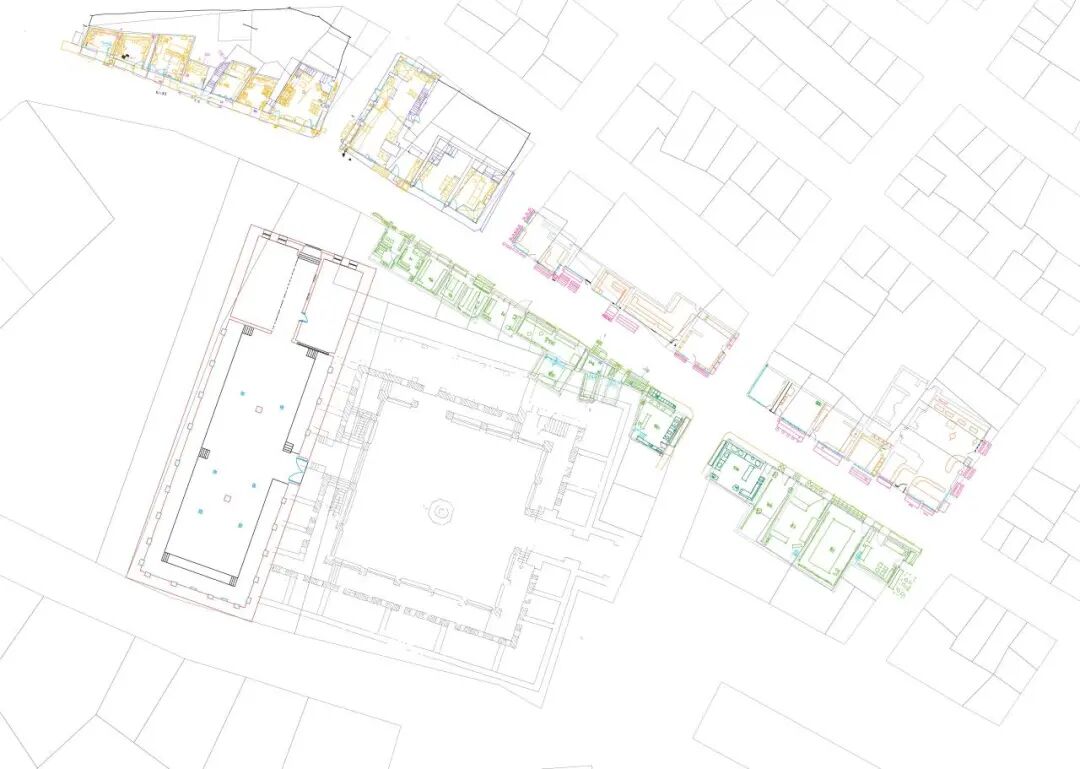
测绘阶段,工作营以贝伊帕扎勒(Beypazarı)历史城区为基地。贝伊帕扎勒位于中安纳托利亚地区,在安卡拉以西98公里。历史悠久,资源丰富,至今仍保留着鲜明的传统空间特征。该地区先后经历赫梯、弗里吉亚、加拉太、罗马、拜占庭、安纳托利亚塞尔柱和奥斯曼等多个政权的统治。塞尔柱时期,这里是连接伊斯坦布尔与巴格达丝绸之路上的重要商贸节点;奥斯曼时期则为重要的军事与行政中心。其历史城区(Historic Town of Beypazarı)现已被列入联合国教科文组织《世界遗产预备名单》(//whc.unesco.org/en/tentativelists/6469/)。
测绘工作营分为两个小组,分别选择贝伊帕扎勒最具特征的两个节点:(1)一座有历史层叠性的奥斯曼时期住宅——其中既有具有拜占庭时期砖石并用特征的墙体,也有经过现代化改造的居室;(2)与丝绸之路商业网络紧密相连的商队客栈(han)及其周边的商业区域。测绘以手工草图与三维扫描、全站仪等仪器结合的方式进行;并在现场测绘的同时,对相关专题研究进行小组讨论。
此次工作营得到贝伊帕扎勒市政府的大力支持,市长亲自接见并表达欢迎之意。来自METU的Özgür Ürey等教师在测绘现场提供专业指导,并举办专题讲座,介绍奥斯曼住宅的类型学特征。测绘成果将与贝伊帕扎勒市政府共享,贡献于建筑遗产的档案记录,并为其改造更新提供基础资料。目前,工作营的实地调查工作已顺利完成,相关成果正在整理,预计将于2025年10月中旬在好色tv 亚洲建筑档案中心举行展览并组织相关学术活动,进一步推动成果共享与交流。



测绘团队现场工作情景(摄影:赵天婵、诸葛净)

测绘团队在测绘点奥斯曼住宅前合影
工作营同学现场日记/体会选
马嘉靖| 2025年7月7日
经历11个小时的长途飞行,我们踏上了这片横跨欧亚的土地。从机场驶向老城区的路上,车窗外的景致正上演一场奇妙的蜕变 ——海面像被泼翻的靛蓝釉彩,成群海鸥振翅掠过头顶,草丛里的橘猫蜷成一团,清真寺宣礼塔传来的古兰经吟诵声漫过街巷。这些碎片瞬间拼凑出一座会呼吸的城,浪漫得不像真实存在,让我对接下来的旅程生出无限期待。
穿过狭窄的石质走廊,映入眼帘的是圣索菲亚大教堂的穹顶。天光从四十道圆拱窗倾泻而下,在古罗马石柱上投下流动的光影,整个空间充满神圣感。拱券的角部,伊斯兰彩绘剥落处,隐约可见被覆盖的拜占庭黄金马赛克,像一场沉默的对话,诉说着帝国的更迭。
从神性的庄严转入世俗的辉煌,托普卡帕宫的连拱廊在阳光下泛着描金的光泽。抬头望去是繁复的穹顶天花,每一根柱子每一块砖石都浸透着奥斯曼帝国的极致奢华;展柜里的金银器具折射出晃眼的光,仿佛能听见昔日宴饮的喧嚣。陈列馆中土耳其服饰与满蒙族的服饰有着微妙的相似,原来丝绸之路的驼铃,早已将不同文明的密码悄悄交换。
穿过皇宫深处的花园,蔚蓝的马尔马拉海突然撞进视野。外苑的石阶上,海风裹挟着咸涩的气息扑面而来。我站在无数帝王曾驻足的地方,远处的船帆正缓缓驶过海峡。这里是 “世界的十字路口”,东与西在此握手,过去与未来在此交汇。而我们的旅程才刚刚在这片神奇的土地上落下第一个坐标。
张奕扬| 2025年7月12日
今天是商店区测绘第一天,我的任务是要从街道的上方开始往低的地方一家店一家店画草图。
不会说土语,而Mira她们在街道的另一端,怎么办?
想了半天打开了翻译器,输入这样一段话“我是来自中国的建筑学学生,现在和中东科技大学一起做研究,请问可以进入你的店铺测量一些数据吗?”
事情远比我想的要顺利,刚向第一家服装店的主人出示了这段文字她就狠狠点头把我带进了店里,甚至在店面的中心摆上了一把椅子示意我坐上去画。
这是早上九点,小店正在开门,这位女士是店主也是店里唯一的员工,正在把店里折起来的各式服装挂到外面的伞架上向人展示。她大概三十岁出头,不戴头巾,背一个黑色挎包,美丽得异乎寻常,进店,拿货,挂起,这三个步骤她完成得几乎行云流水,四肢在空间中轻轻划过,舒展,似乎不费力气。店里除了衣服就只有衣服,但我发现衣服堆得最高的地方她再铺一块布就变成了餐桌,那上面放了一小块三明治,是她的早餐台,横纵各不足三米的店是她度过无数日夜的小天地。
走的时候我挥挥手,她很明艳地笑了一下。

客栈商店区合并草图(绘图:李思涵,张奕扬,Mira,付翔,胡亦涛)

客栈与商店
邢艺华| 2025年7月17日
今天是留在住宅工作的最后一天,我照常八点钟出门,事实上我原计划想要完成的工作已经无论如何都完不成了,昨晚计算剩下的能够工作的时间之后,只能决定忍痛放弃一些部分,工作状态一下从时间紧迫变成查漏补缺,心态也轻松下来了。
Esra带我们在住宅中重新梳理了研究方向,似乎有所明悟,许多测绘途中没注意到的新细节又被提出,我记录了这些细部,期待整理汇报时能有所贡献。下午再返住宅,明明理论上已经完成了所有的绘制,但我们几人都觉得没看到的太多了,记录不下来的太多了,甚至萌生了把住宅偷回中国的想法(bushi);但只能一面墙接着一面墙,尽可能完整细致的留下照片作为记录。不管怎样,这一天还是按时下班。

住宅二层平面测绘草图(绘图:邢艺华)

住宅室内(摄影:邢艺华)
付翔| 客栈测绘感想
这个暑假在土耳其贝伊帕扎勒的测绘经历,让我对建筑的生命力有了新的认识。我重点测绘了一座经过修复的古老客栈和周边街道的住宅。
这座客栈保留了原有的形制——坚实的石墙、围合的庭院、拱形的门廊。但修复赋予了它新的活力:原本驼队休憩的庭院,如今成了游客歇脚、喝杯土耳其红茶的好地方;曾经供旅人休息的室内空间,有时会举办小型展览,古老的石墙与现代的艺术品并置,有种奇妙的和谐感。
测绘驿站周边的传统住宅时,我特别留意了它们的剖面。一个显著的特点是向街道的“生长”:二层往往比一层向外悬挑一些,到了三层,木结构的部分又会比二层再探出一点。这种层层递进的悬挑形成了独特的街景。最难忘的是街上的孩子们,每次我们扛着仪器在巷子里工作,总会有小朋友热情地用中文喊“你好!”。他们纯真的笑容和问候,瞬间拉近了距离,让辛苦的测绘工作充满了温暖。
回望那座驿站和层叠的民居,我深刻感受到测绘不仅是数据的简单记录,更是触摸一座城镇过去与现在交织的脉搏。



客栈鸟瞰、庭院与大厅室内(摄影:诸葛净,付翔)

住宅与客栈(摄影:付翔)

